Back to project

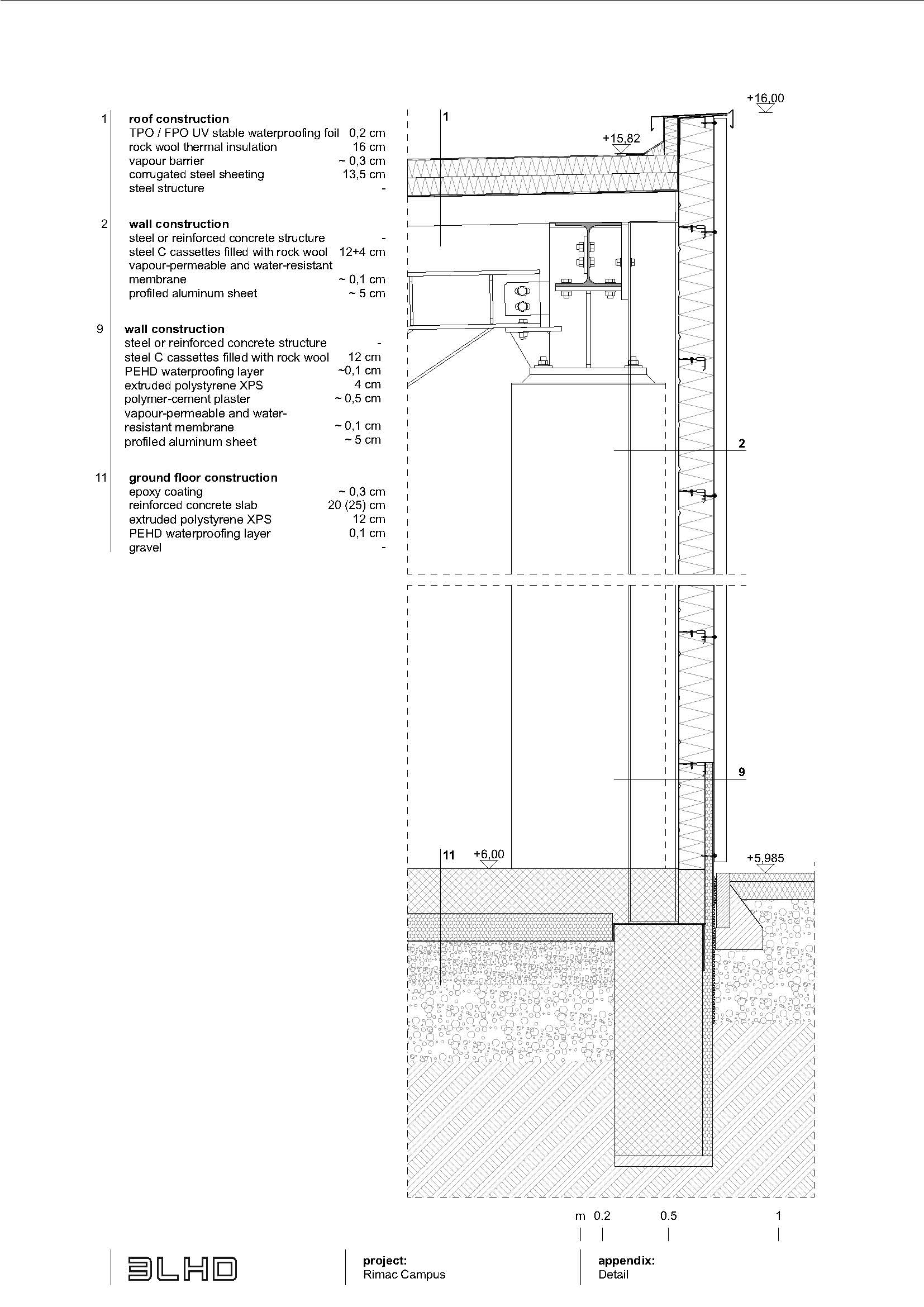
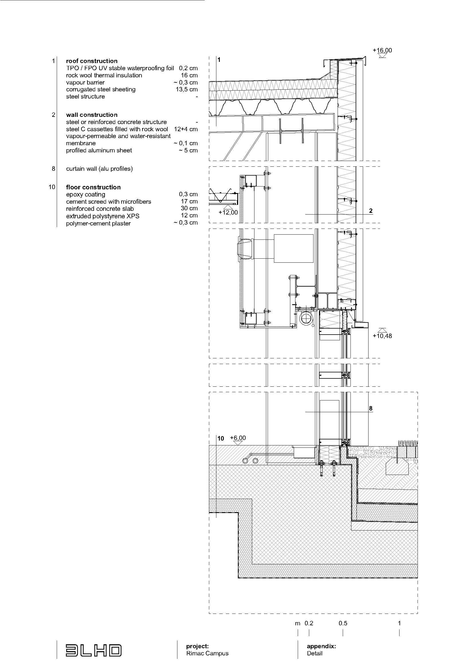
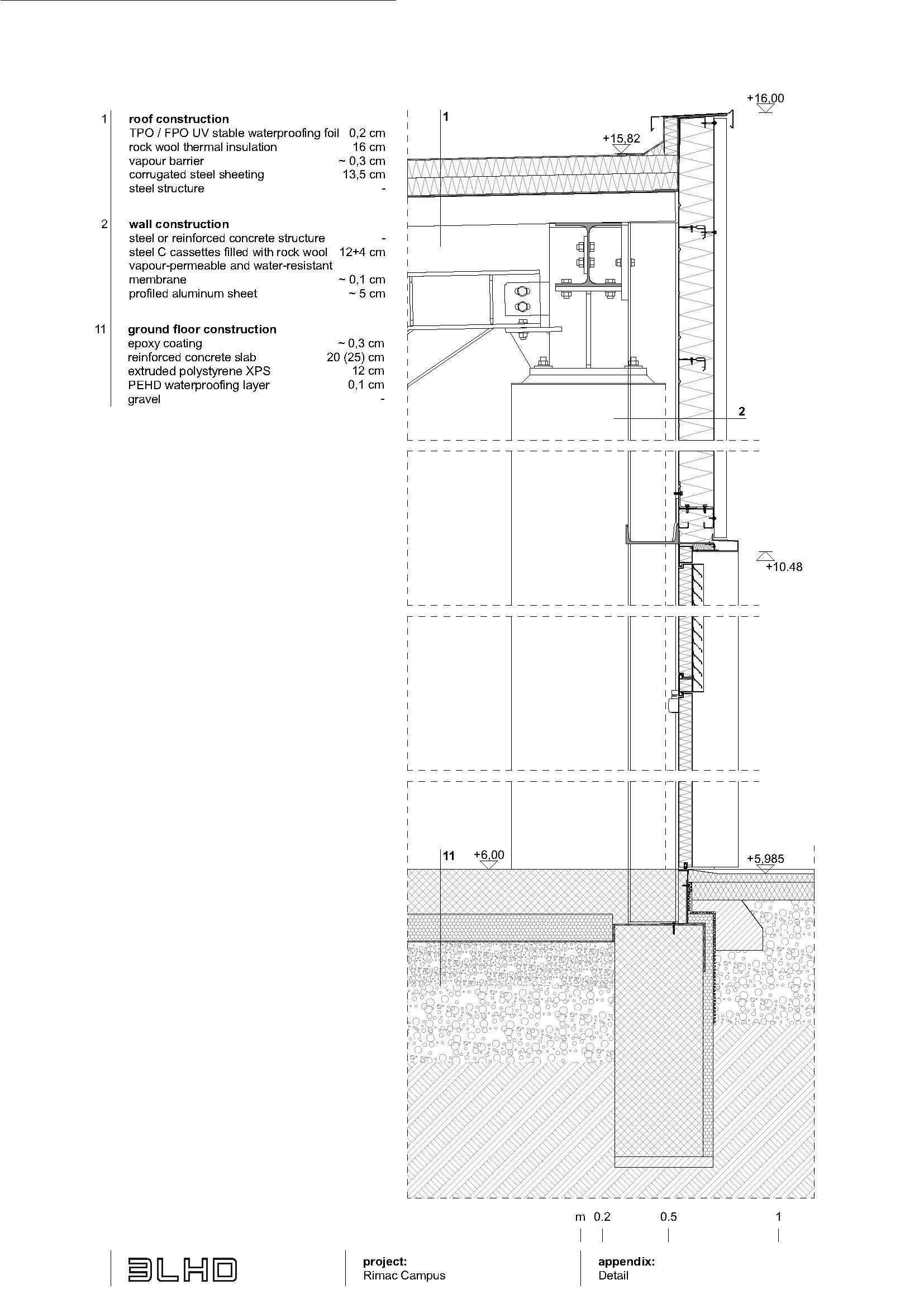
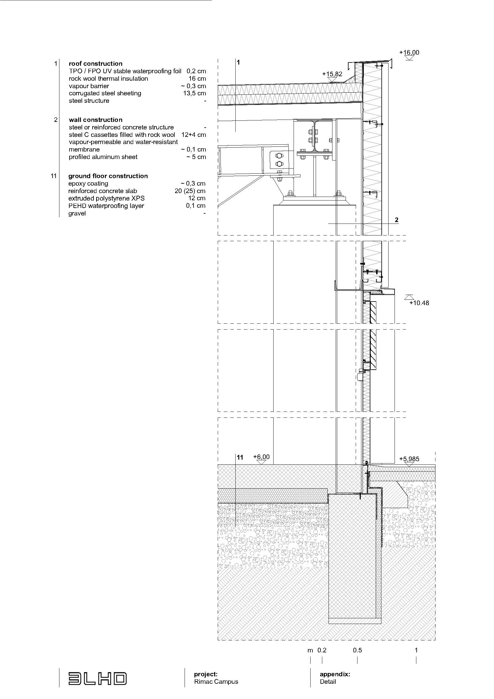
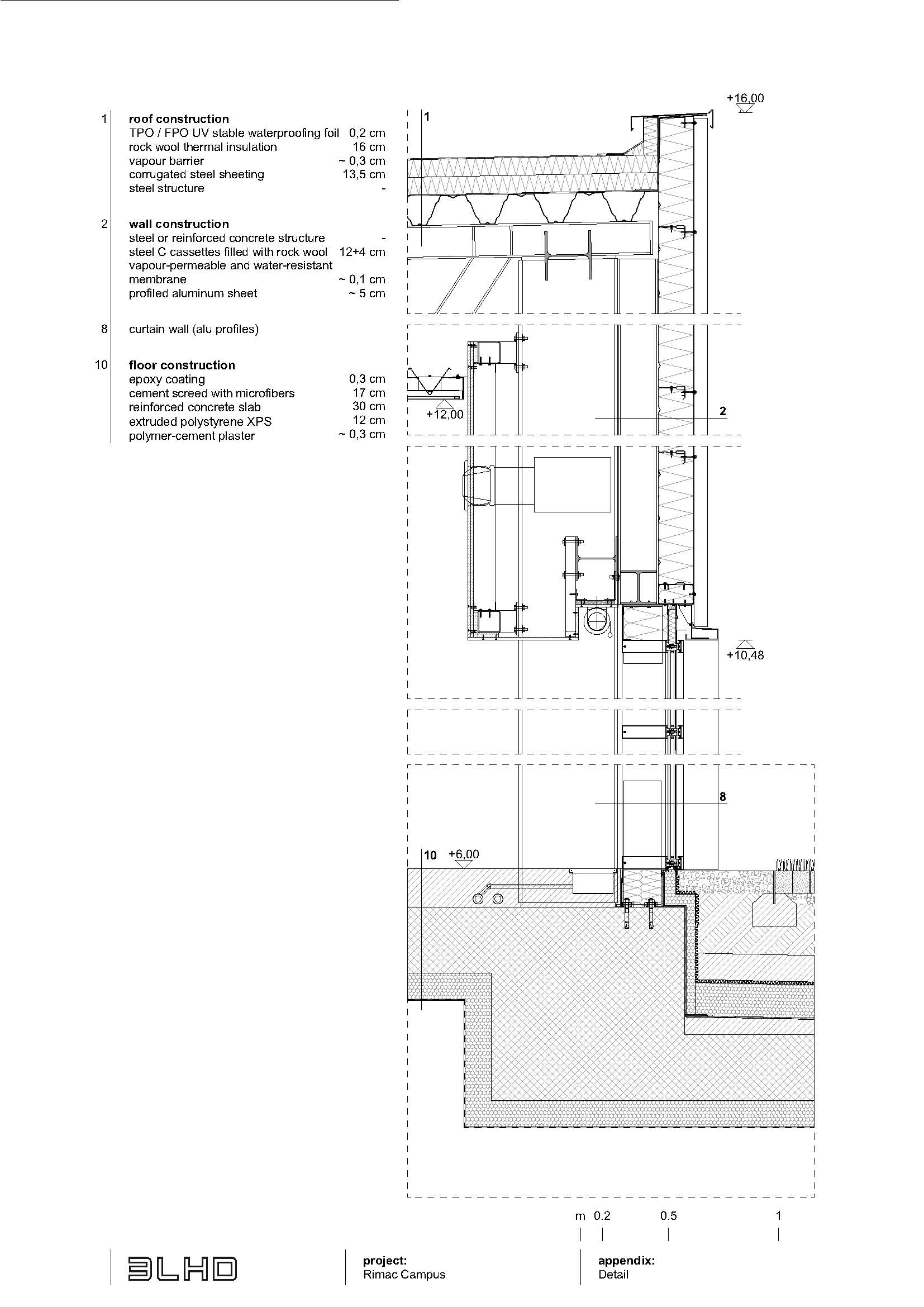
Detalji

Fotografije

Nacrti

Detalji

Gradilište

Back to top Back to project