Back to project

The Karlovac Freshwater Aquarium – Aquatika – is a public, educational, and scientific institution dedicated to showcasing the richness of Croatia’s freshwater biodiversity.

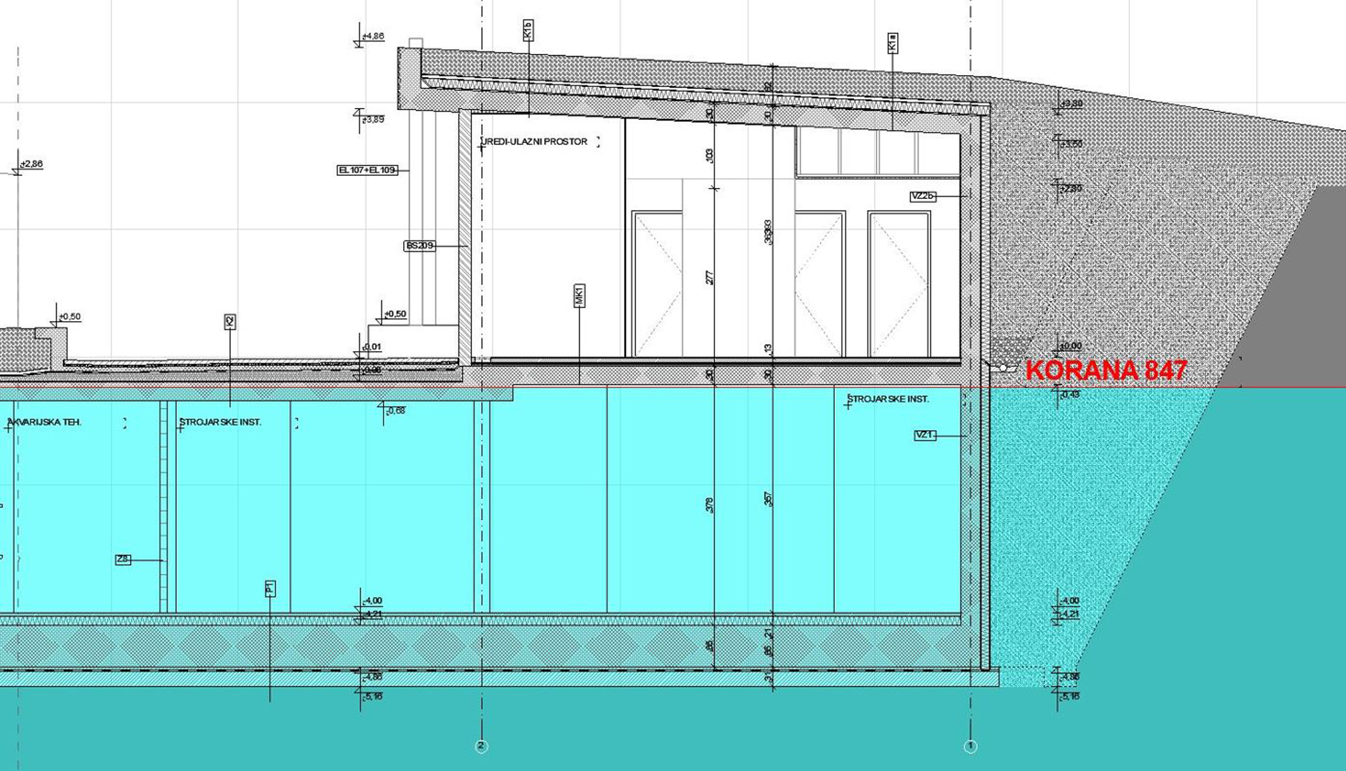
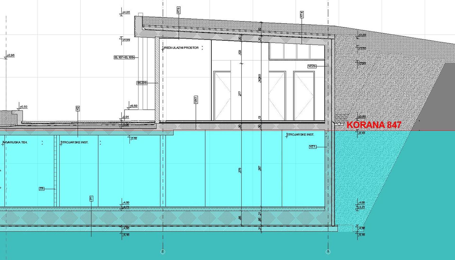
It is located on the banks of the Korana River, on the site of a former auto-camp, thus revitalizing an abandoned and frequently flooded area. As the site lies in a high-risk flood zone, ensuring the building’s resistance to potential flooding – and thereby protecting both visitors and the valuable aquarium exhibits – was a key priority from the very beginning of the design process. The solutions were developed in collaboration with experts from various fields and included a series of technical and architectural adaptations. The most important measure was raising the ground floor level and the central courtyard between the buildings above the highest recorded water level of the Korana River – 847 cm. 

In this way, the facility was ensured to remain dry even in the event of a repeat of record floods. A crucial element is also the double waterproofing of the entire concrete structure, which prevents water from penetrating the interior.

A special challenge arose during construction itself. To prevent damage to the structure caused by strong buoyant forces, holes were intentionally left in the concrete, allowing controlled flooding of the unfinished building. Only after the completion of the works were these holes sealed, and the structure fully protected. This solution proved decisive for the long-term safety of the facility.

The aquarium’s resilience has been confirmed several times in practice. During the 2015 flood, when the facility was still in the design phase, the level of the courtyard was raised based on the experience gained at that time. Three years later, in March 2018, the Korana once again reached record levels and flooded the entire surrounding area. Despite this, the aquarium remained above water, proving that the protection system functions perfectly.

Aquatika thus serves as an example of how careful planning and sustainable design can create an attractive public facility even under extremely demanding conditions. The project has not only enriched the local community and the tourist offer of Karlovac, but also demonstrated that construction in flood-prone areas can be safe when natural risks are taken into account and innovative architectural solutions are applied.
Overall, the resilience of the Karlovac Aquarium is the result of a combination of thoughtful architecture, engineering precision, and direct experience with floods. Thanks to this, Aquatika remains a long-term safe and functional center for knowledge, education, and recreation on the banks of the Korana River.

Drawings

Photo

Construction site

Project story: Flood protection and the Karlovac Freshwater Aquarium

Back to top Back to project